迈入2021年,武汉市加快新一线城市建设,力图成为新一线城市领头羊。作为迎接世界的“城市门户”,临空新城承担着面向全球,展现武汉风采的重任,是武汉呈现给世界的第一“城市印象”。周大福、卓尔通用航空项目、长江光电、比亚迪、爱帝等企业相继落户,并且布局了天河机场、沿江高铁天河站(规划)、天河国际会展中心、空港体育中心等一系列重大开放枢纽性项目。临空新城已经成为一个具有产业、新城、交通及市政配套等的“城中之城”。

黄陂区规划分区规划图
匠心中南 落子黄陂“C”位
2015年湖北省人民政府出台加快推进武汉临空经济区建设政策,要求有效整合临空港资源要素,加快推进临空经济区建设(文件:鄂政发〔2015〕27号)。2016年中南集团入驻武汉,其中南·拂晓城项目落子临空板块。作为川龙大道的标志性项目,项目总建面达49万方,其中商业部分约4.9万方,为区域内不可多得的城市综合体项目。

中南拂晓城示意图
教育、医疗、交通配套完善
中南·拂晓城项目占据横店板块中芯区位,周边教育、医疗、交通配套环伺。公立九年制学校-横店实验学校距离项目约300米。同时,项目紧邻地铁口,距7号线延长线天阳路站约300米,可快速通达前川城区、盘龙城等重要区域。医疗方面,项目周边规划有一家三甲医院,目前盘龙城居民医疗需求主要依靠黄陂人民医院,医疗资源相对紧缺,中南拂晓城旁边的三甲医院落定之后不仅能解决业主就医问题,对整个片区的医疗配套也会有所增益。

中南拂晓城区位图
1800㎡中百仓储 赋能引流
2021年3月16日,中南·拂晓城与中百仓储超市签约,作为横店新城片区首家中百仓储店其店铺面积约1800㎡,营业至今吸引了小区内及附近小区的业主住户诸多客群消费,未来几年随着地铁通车、周边小区入住、学校投入使用将会吸引超万人流量,中南·拂晓城将会引爆片区商业发展。

签约仪式现场图
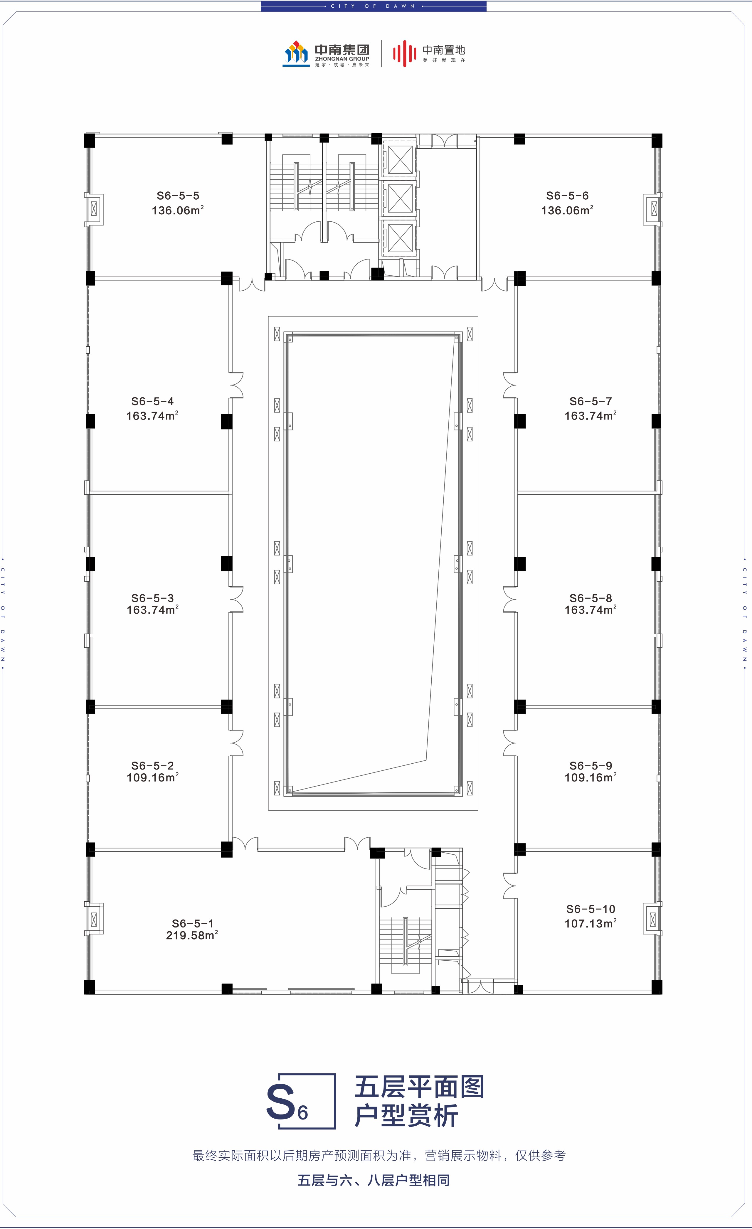
5.4米层高绝版户型 百变空间自由转换
中南·拂晓城项目最具看点的就是5.4米层高的百变公寓,建筑面积107-329㎡,整层1100㎡。空间方面,方方正正的布局使得空间得到较大化利用,利用5.4米奢阔层高,随时可变为约200-2200㎡的空间,畅享开阔视野,带来前所未有的视觉体验。项目以毛坯交付,交付时水、电、天然气皆通,业主可租住自由转换。

中南拂晓城公寓平层图
实地探访 办公、投资首选
中南·拂晓城公寓整体的空间非常敞阔,即使同时有数十人办公也不会显得拥挤。高挑的房屋内部高度,二楼改造后作为会客区也不会显得压抑。楼下作为办公区空间也是足够得,既能保证会客的安静和隐私,又便于公司内部人员的沟通,有效的提升了工作效率。

中南拂晓城公寓展示样板间实景图

中南拂晓城公寓展示样板间实景图

中南拂晓城公寓展示样板间实景图
据悉,中南·拂晓城公寓售价接近周边项目地价,未来更具有发展空间。买一层享两层空间,空间不显拥挤,性价比更高。随着周边配套的逐渐成熟,后期极具发展潜力,未来可期。
智慧服务 百万业主臻选
物业服务方面,中南物业服务公司是具备国家一级物业管理资质,以物业服务为基础,以服务平台为介质,以智慧科技为手段的大型综合性物业服务企业。全国服务项目逾200个,总合同服务面积约5300万平方米,为30万家庭,120万业主诚挚服务。

中南物业服务范围
目前,中南·拂晓城公寓已经吸引了大量人气,更有类似湖北楚峰建科、途瑞智能公寓酒店等企业拿下整层办公或入驻。
中南·拂晓城公寓能够得到片区消费者的偏爱,更重要的原因是其街区商业规划,未来还将带来了大量的客流人气。临空新城核心C位,这样的公寓谁人不爱!
据悉,项目推出的全民推荐活动再次升级,凡公寓推荐成功者可获得该套公寓成交总金额6%的(税前)奖励,最高可获得10万元佣金(税前)奖励!如果您对项目感兴趣,可以联系置业顾问:
段奎 18971393489(微信)
许骋 15271867404(微信)
说明:湖北省人民政府关于加快推进武汉临空经济区建设的若干意见文件来自:鄂政发〔2015〕27号文件
黄陂区分区规划图:武汉市黄陂区自然资源和规划局http://gtghj.wuhan.gov.cn/hp/show.asp?Id=188545&cid=1002
地铁7号线规划来自于湖北楼市资讯:https://www.163.com/dy/article/GOFA7NFU05529FN2.html
横店临空学校新闻来源黄陂区人民政府:http://www.huangpi.gov.cn/ywdt/bmzc/202101/t20210106_1590916.html

